Logo KKW Stendal
 

Kernkraftwerk Stendal - die wechselvolle Geschichte


Stendal Nuclear Power Plant - History

Kaum ein anders Kernkraftwerk weltweit dürfte eine so wechselvolle Geschichte und eine so enorme Bauzeit gehabt haben. Die Geschichte des KKW Stendal wird aus den Archiven des KKW Stendal, der Auswertung von Veröffentlichungen und durch Befragungen zahlreicher Zeitzeugen noch immer zusammengetragen. Die Sichtung der Archive, auch außerhalb des KKW Stendal, sind noch nicht abgeschlossen.

Stand der Archivforschung: 11.09.2013:

Ende 1971 wurde der Aufbaustab KKW III mit Sitz in Rheinsberg gegründet. Grundlage war ein Ministerratsbeschluss vom 16.04.1970. Die neuen sowjetischen 1000 MW Reaktoren sollten zum Einsatz kommen. Das KKW III, auch KKW Magdeburg genannt, sollte in der Nähe des Ballungszentrums Magdeburg entstehen. Hohenwarthe an der Elbe war der aussichtsreichste Standort. Der Aufbaustab zog Mitte 1972 nach Burg bei Magdeburg um. Als Wohnunterkunft für die Mitarbeiter wurde einer Hoteletage, Hotel in Möser, nähe Autobahn, angemietet.

    Adresse: 327 Burg (Bez. Magdeburg), Zerbster Chaussee 10, PSF 35 f     Fernruf: Burg 2514  Telex: adrei 87 448
Auf Bitten der sowjetischen Seite wurde er Reaktortyp in WWER 440 geändert (im Bau befindlich war zu dieser Zeit nur der WWER 1000-Prototyp in der UdSSR). Mit den WWER 440 war auch Hohenwarthe laut DDR Atomgesetz nicht mehr möglich. Das Arneburger Plateau mit dem Dorf Niedergörne (ca. 120 Einwohner, gehört zur Gemeinde Altenzaun, Kreis Osterburg) war der neue Standort. Der Aufbaustab zog zwischen dem 08.10.1973 und 01.04.1974 nach Stendal-Borstel in einige Gebäude des VEB Erdöl-Erdgas Stendal um.

Im Juli/August 1973 wurden Vorverträge zwischen dem Rat des Kreises Osterburg und den Einwohnern von Niedergörne abgeschlossen und damit die Einwohner auf den bevorstehenden Umzug vorbereitet. Für alle Einwohner wurden die laut Gesetz zustehenden Entschädigungen (Mieter und Eigentümer) ermittelt. Bis Ende 1975 wurden durch Endverträge über den Rat des Kreises Stendal, Stadt Arneburg, die Entschädigung und der kostenlose Umzug nach Osterburg oder Arneburg oder Stendal durchgeführt. Keiner der betroffenen Bürger hat dazu je eine Eingabe gemacht - weder über einen Zwang noch die Höhe der Entschädigung. Das Evangelische Konsistorium der Kirchenprovinz Sachsen wollte 1975 für die Dorfkirche von Niedergörne den Entschädigungssatz für Wohnbauten (160%) sogar haben und hat daher am 11.07.1975 einen Brief an den Vorsitzenden des Rates des Bezirkes Magdeburg geschrieben.

Nach der Wende versuchten einige Alteinwohner von Niedergörne, Erbengemeinschaften und das Evangelische Konsistorium der Kirchenprovinz Sachsen den Verkauf an das KKW als Zwang/Enteignung darzustellen. Alle diese Anträge wurden aber abgelehnt. Auch eine Neubewertung des Kaufpreises aus den Kaufverträgen von 1975 ergab keine Beanstandungen. Die DDR Kaufverträge erfolgten in Übereinstimmung mit der DDR Rechtsordnung.

Am 09.05.1974 wurde die Baustelle offiziell eröffnet und auch in der Presse (Volksstimme, 01.08.1974) bekanntgegeben. Der Geländebedarf betrug am 01.03.1974 8.43 ha, am 01.05. kamen weiter 51.3 ha und am 01.07.1974 weitere 14.27 ha hinzu. Für 1975 waren weiter 35 ha in KKW Nutzung geplant. Insgesamt sollte ein Geländebedarf von etwa 360 ha für das KKW III bestehen. Für die nicht genutzten Flächen wurden mit angrenzenden LPGs Bodennutzungsverträge abgeschlossen. Am 31.12.1988 befanden sich 581.2 ha in der Rechtsträgerschaft des VEB KKW Stendal (Gemarkung Schwarzholz, Altenzaun, Hohenberg-Krusemark, Arneburg).

Einige Gebäude in Niedergörne dienten dem Aufbaustab als Unterkunft. Erste Baumaßnahme des KKW war die Verlegung einer Trinkwasserleitung von Altenzaun nach Niedergörne, da das Dorf nicht an das DDR Trinkwassernetz angeschlossen war und weiter zum 1. Stützpunkt. (südlich von Niedergörne). Ende 1976 waren alle Gebäude des Dorfes, Ausnahme das Trafohaus, abgerissen. Südlich von Niedergörne wurde der 1. Stützpunkt aufgebaut. Für die Großbaustelle mussten in Osterburg und vor allem in Stendal die notwendigen Infrastrukturen geschaffen werden (Wohnungsbauprogramm, Schulen, Poliklinik Stendal, Kaufhallen, Kulturelle Mehrzweckeinrichtung Stendal, ...).

Für Arneburg war 1988 eine Siedlung für KKW Mitarbeiter (sowj. Spezialisten) in der Dalchauer Str. geplant. 7 Blöcke mit 30 WE und 1 Block mit 40 WE ergaben 40 1-Raum-WE, 33 2-Raum-WE, 121 3-Raum-WE und 56 4-Raum-WE mit insgesamt 14602 m² Wohnfläche. Dazu 2 Spielplätze, Kaufhalle mit 300 m² Verkaufsfläche und eine Gaststätte mit 120 Plätzen und Terrasse. In diesem Neubaugebiet wurde auch die Fläche für eine Kinderkrippe reserviert.

Aus dem Aufbaustab KKW III wurde am 01.01.1975 der VEB KKW Stendal und der VVB Kraftwerke Cottbus unterstellt. Die Betriebsnummer: 916 81 335, Registriernummer 110-07-1030 beim Staatlichen Vertragsgericht der DDR (Organ des Ministerrates der DDR). Mir der Verfügung Nr. 9/80 vom 29.07.1980 wurde im Bereich des Ministeriums für Kohle und Energie mit Wirkung vom 01.10.1980 die Organisationsstruktur geändert. Die VVB Kraftwerke, Sitz Cottbus, hat ihre Tätigkeit eingestellt und das VE Kombinat Kernkraftwerke "Bruno Leuschner", Sitz Greifswald, seine Tätigkeit aufgenommen.
Der VEB KKW Stendal, Sitz Arneburg, Kreis Stendal war Investitionsauftraggeber (IAG) und Betreiber des KKW. Der Generalauftragnehmer war das VE Kombinat Kraftwerksanlagenbau Berlin (KAB oder KKAB).

Nach der Einebnung des Baustellengeländes begann die Errichtung der Zentralen Baustelleneinrichtungen (ZBE). 1979 wurde das Konzept von 4 x 440 MW Reaktoren in 4 x 1000 MW Typ WWER 1000/320 geändert. Nach Zeitzeugen war der Atomunfall im AKW Three Mile Island einer der Auslöser. Die Planungen des aktiven Bereiches des KKW Stendal mussten neu erfolgen. Die 1.Baustufe (Stendal 1 oder S1 genannt) wurde mit 2 x 1000 MW Reaktoren in Angriff genommen. 1981 erfolgte die Grundsteinlegung für Reaktor A, 1983 für Reaktor B. In Stendal kam erstmals ein Containment in Stahlzellenverbundbauweise entwickelt von der Bauakademie der DDR (u.a. Patentanmeldung WP 97461) zum Einsatz. Von der sowjetischen Seite wurde das Konzept angenommen (Beratungen vom 23.05. bis 10.06. 1983 in Berlin).

In den Jahren bis zur Wende war zeitweise ein zögerlicher Baufortschritt erkennbar. Eine der Ursachen dürften die vielen Großbauprojekte der DDR gewesen sein die nicht gleichzeitig finanzierbar waren. Der Arbeitskräftemangel und die häufige Abgabe/Delegierung von Arbeitskräften an andere Einrichtungen wirkte sich negativ auf den Baufortschritt aus.

Nach der Katastrophe von Tschernobyl (1986) hatte die sowjetische Regierung angewiesen, alle laufenden KKW Projekte (auch der WWER-Reaktortypen) einer gründlichen Überprüfung auf evtl. Schwachstellen zu unterziehen. Das bedeutete jedoch praktisch wieder eine Verzögerung der Planungs-, Bau- und Montagearbeiten des KKW. Ende der 80er gab es bei einigen Komponenten auch Lieferschwierigkeiten.

Weltweit wird jede kerntechnische Anlage durch Geheimdienste beobachtet. In der DDR war dafür das MfS (Ministerium für Staatssicherheit, kurz Stasi) zuständig. Es galt innere und äußere Störpotentiale, welcher Art auch immer, zu erkennen und entsprechende Gegenmaßnahmen einzuleiten. Mehrere Räume in der 3. Etage des MZG II (Mehrzweckgebäude II) wurden dafür genutzt. Als Verschlüsselungssystem wurde eine T-307 im S1 Netz (abhörsicheres Telefonnetz der DDR) verwendet. Die Tastatur des T-307 wurde in einer Bergungsaktion des Deutschen Chemiemuseums Merseburg sichergestellt.

Zur Absicherung der Baustelle und des späteren Betriebs wurden ein Betriebsschutzkommando der VP und ein Betriebsfeuerwehrkommando eingerichtet. Die Angehörigen waren dem MdI (Ministerizum des Innern) unterstellt. Das BS-Kdo hat den Einlassdienst übernommen, das Gelände bestreift und auch Straftaten verfolgt. Die DDR konnte damit ihren internationalen Verpflichtungen aus dem sogenannten Atomsperrvertrag, einem Übereinkommen zur Nichtweiterverbreitung vom spaltbaren Material, nachkommen. Die Baustelle des KKW wurde für die westlichen Militärmissionen zum Sperrgebiet erklärt.

Eine neue Bahnlinie zum KKW wurde 1976 vom Abzweig Stendal-Borstel beginnend, teilweise auf der Trasse der alten Kleinbahn Arneburg-Stendal-Ost, errichtet. Der neue Werkbahnhof wurde in Erinnerung nach dem Dorf Niedergörne benannt. Der Personenverkehr von Stendal nach Niedergörne wurde im Januar 1977 aufgenommen (Kursbuchstrecke 753 der DR). Dafür wurden der Haltepunkt Stendal-Stadtsee und der Bahnhof Niedergörne neu gebaut. Die KKW-Werkbahn umfasste 1990 ca. 25 km Gleise und 64 Weichen und 3 Loks der Baureihe V22. Große Gleisbereiche sind heute zurückgebaut. Die Anschlussbahn Borstel - Niedergörne wird heute vor allem durch das Zellstoffwerk Stendal genutzt.

Das Vorhaben Kernkraftwerk Stendal wurde 1978 immer noch auf der Grundlage der - Ausnahme/Übergangsregelung zur Sicherung der weiteren Vorbereitung und Durchführung des Vorhabens bis zur Bestätigung der Investitionsvorentscheidung - vom 14.03.1977 / 20.04.1977 vorbereitet und realisiert.

Am 20.02.1986 verfügte das Staatliche Amt für Atomsicherheit und Strahlenschutz einen Baustopp. Ursache waren Mängel an den Stoßfugen der Verbindungsstellen Stahlzellen/Betonzellen bzw. -Decken. Am 12.03.1986 legte das MLK Forschungsinstitut (Metall Leichtbau Kombinat Leipzig) Sanierungsvorschläge vor.

Bischof Dr. Christoph Demke (Magdeburg, Kirchenprovinz Sachsen) besucht am 21.03.1988 die Baustelle des KKW und äußert sich wohlwollend im Gästebuch des KKW Stendal über das gesehene.

    "Für die umfassende Erläuterung der energiepolitischen Grundsätze in unserem Lande und die gewaltigen Bauvorhaben am Ort und ihre territorialpolitischen Auswirkungen danke ich sehr.
    Ich wünsche für die verantwortungsschwere Aufgabe, die wir noch vor unseren Kindern und Enkeln zu verantworten haben ein Gelingen, das dem Menschen und der friedlichen Entwicklung dient, und die Bewahrung der Natur achtet."

Wie jeder große DDR-Betrieb musste auch der VEB KKW Stendal Konsumgüter herstellen. Die DDR Farb-Fernsehgeräte (Serie 4000), genauer die Bestückung von Leiterplatten, war der KKW Beitrag dazu.

Für die Ausbildung der Fachkräfte war der Bau eines 1000 MW Trainers in der Stadt Stendal begonnen worden. In einer am 16.02.1990 durchgeführten Beratung teilte der Rat der Stadt Stendal die Rücknahme der Standortgenehmigung mit. Am 23.02.1990 wurde daraufhin das Investitionsvorhaben 06/1-89 storniert.

Im Betriebsgebäude am Block A befanden sich neben dem Bereich der Strahlenschutzüberwachung (SSÜ) auch die zentralen Leitwarten und auf der 10. Etage sollte ein Betriebsrestaurant entstehen.
Leitwarten und Überwachungsbereiche gab es auch im Sanitär - Labor - Gebäude (SLG).

Ähnlich wie im KKW Lubmin sollte auch in Stendal eine Wärmeauskopplung erfolgen. Der Verlauf der Fernwärmeleitung bis Stendal war geplant, die Weiterführung bis Magdeburg wurde angestrebt.

Im Februar 1990 wurde für Block B der Ausrüstungsumfang der BMSR-Technik und im September 1990 die komplette Ausrüstungslieferung gegenüber der sowjetischen Seite storniert.

Mit Wirkung vom 10.05.1990 übernimmt Harald Gatzke Betriebsdirektor. Er war vorher stellv. des Ministers.

30.06.1990, 07:23 Uhr: am Reaktorgebäude A ereignet sich der folgenschwerste Unfall seit Eröffnung der Baustelle. Mit Hilfe der 2-Kran-Montagetechnologie (Koppelbinder) soll ein angeblich 50 t schweres Bauteil eingehoben werden. 3 Menschen fanden dabei den Tod. Nach ersten Schätzungen war der Schaden zwischen 6 - 10 Mio. DDR-Mark.
Eine Untersuchungskommission unter der Leitung von Dr. Kutschbach (Bauakademie der DDR) wurde eingesetzt. Der MKZ 2 (MKZ 3000) wird gesperrt. Die TU Dresden wurde in die Überprüfung der Montagetechnologie eingeschalten. Alle verwendeten Anschlagmittel wurden zur Untersuchung an das Institut für Bergbautechnologie Leipzig überstellt. Im Baustellenbereich IMO Leipzig Festlegung Arbeitsende auf 18:30 Uhr (09.07.1990).

Rückwirkend zum 01.07.1990 wird durch einen Geschäftsanteils- und Übertragungsvertrag übernimmt die THA alle Geschäftsanteile der KKW Stendal GmbH von der EWN.

Am 07.08.1990 erfolgte die Auflösung der HAN Dispatcherzentrale (BMK Magdeburg, KB KKW Stendal); siehe letzter Eintrag im Dispatcher Schichtbuch Nr. 23.

Am 17.09.1990 wurde durch den GAN (KKAB Kombinat Kraftwerksanlagenbau Berlin, Rechtsnachfolger war KAB AG) ein Baustopp ausgesprochen. Danach waren nur noch bausichernde Maßnahmen notwendig. Zu diesem Zeitpunkt waren alle Gebäude des aktiven Bereiches noch in der Rohbauphase. Der Reaktor A war nur zu ca. 40 % (Rundlaufkran - Hersteller SKET - wurde noch eingesetzt, Containment noch offen, alle weiteren Einbauten fehlten), der Reaktor B zu ca. 15 % (Decke Ebene 13.20 noch in Arbeit) und die radioaktiven Nebenanlagen waren zu ca. 40 % fertiggestellt (ZAW, SWA, SSÜ-Gebäude alle unvollendet im Rohbau). Ein Teil der Beschäftigten des KKW Stendal wurde an westliche AKW "ausgeliehen" und so die Masse der Kurzarbeiter verkleinert. Die zahlreichen auf der Baustelle agierenden Unternehmen begannen ihr Eigentum zu sichern (Demontage und Abtransport).

Im Protokoll vom 28.09.1990 mit Atomenergoexport Moskau wurde unter Punkt 3 die Einstellung der Fertigung der Ausrüstungen für den Block B des KKW Stendal I vereinbart.

Am 02.11.1990 fand eine Beratung zur Bautenzustandserfassung und vorläufige Abnahme der Bauleistungen KKW Stendal I zwischen KKW Stendal GmbH, KAB AG und IBA GmbH statt.

In einer Vorortbesichtigung wurde am 08.11.1990 im Beisein von Vertretern des Wasser- und Schiffartsamtes festgestellt, dass noch umfangreiche Sicherungsmaßnahmen im Flussbereich der Elbe im Bereich KKW Stendal zu realisieren sind, um die internationale Schifffahrt auf der Bundeswasserstraße nicht zu behindern.

Mit Schreiben vom 05.02.1991 hat KKW Stendal dem GAN (KKAB) die Einstellung aller Arbeiten an Block B mitgeteilt und am 20.03.1991 die Auflösung des Investitionsleistungsvertrages vom 29.04./30.06.1975 und aller seiner Nachträge zum 31.03.1991 dargelegt. Eine gemeinsame Abwicklung der Vertragsauflösung wurde vorgeschlagen. Die Grundlagen dazu:
1. Annullierung der Planungsaufträge E- und Leittechnik vom 14.01.1991 an KKAB und KWU
2. Beschluss Aufsichtsrates KKW Stendal GmbH über die Annullierung Blöcke A und B vom 25.01. und 19.03.1991
3. Annullierung des 15. Nachtrages zum §2 des ILV vom 31.01.1991
4. Bestätigung der Annullierung Block B KKW Stendal I vom 05.02.1991
5. Fax von Dr. Grundermann, Treuhandanstalt Berlin (THA), an KKW Stendal GmbH vom 08.02.1991

Auch mit dem Engagement der Fa. SIEMENS/KWU zur Ertüchtigung der Reaktoren A und B mit westlicher Sicherheitstechnik konnte eine Fertigstellung, trotz Bestandsschutz lt. Einigungsvertrag, nicht verwirklicht werden. Auch die Planung von 2 Konvoi-oder Nachkonvoi-Reaktoren (1300 MWe, Stendal C und D) durch SIEMENS/KWU und PreußenElektra konnten wegen des einsetzenden Energieüberflusses im Osten nicht umgesetzt werden (durch die THA wurden viele Betriebe mutwillig stillgelegt).
Es wurde auch an einem Konzept gearbeitet mit dem Ziel der Errichtung des Prototyps "Europäischer Einheitsreaktor" EPR durch SIEMENS/KWU und FRAMATOM am Standort Stendal.
 
Varianten der KKW Stendal Reaktor-Planung waren:
1. Reaktor A und B (beide WWER 1000) neben C und D (beide Konvoi 1300 MW) mit insgesamt 4600 MW brutto
2. Reaktor A neben C und D mit 3600 MW
3. Reaktor C und D mit 2600 MW
Die 3. Variante, reine westliche Technik, scheiterte an ökonomischen Aspekten. Somit ist das Argument der veralteten und unsicheren russischen Technik als Ende des KKW Stendal nicht haltbar!

1990 wurde aus dem VEB KKW Stendal die KKW Stendal GmbH. Bereits Anfang 1990 sank die auf der Baustelle beschäftigten Menschen, die ab dem 01.07.1990 (Währungsunion, fehlender DDR-Staatshaushalt) drastischer weiter voranschritt (Mitte 1990 ca. 7500 Beschäftigte). Rückwirkend zum 01.07 1990 wurde die KKW Stendal GmbH direkt der THA unterstellt (Schreiben vom 21.03.1991 mit der Zustimmung THA Aufsichtsrates, gemäß §12 Abs. 3 THG).
 
Mit der Aufgabe aller KKW-Projekte 1991 wurde die Abwicklung das neue Kerngeschäft. Die Abwicklung der Lieferkette mit den sowjetischen Partnern (angearbeitete Technik lt. Vertrag) kostete ca. 497 Mio. D-Mark.

Zu den veröffentlichten Dokumenten zählen u. a. der Kennziffernkatalog des VE Kombinates Kernkraftwerke, Fassung von 1984. Die geplanten Kosten für S1 (2x1000 MW) sind dort mit 10.24 Mrd. Mark (AST) und mit 11,11 Mrd. Mark (S1 nach GAN) geplant. S2 (4 x 1000 MW Reaktoren) sollte nach AST 18,0 Mrd. Mark und nach GAN 19,43 Mrd. Mark betragen.
 
In der 3. Fassung der Grundsatzentscheidung 1. Baustufe von 12/89 wurde der Investitionsaufwand mit 20,226 Mrd. Mark angegeben (2. Fassung 1985/86 waren es noch 15,157 Mrd. Mark). Die Angaben für Probebetrieb Reaktor A wurden von IV/92 auf II/94 und der Dauerbetrieb von IV/93 auf II/95 geändert. Reaktor B sollte 24 Monate später folgen. Am Vorabend der Währungsunion beliefen sich die Verbindlichkeiten der KKW Stendal GmbH auf 5,2 Mrd. Mark der DDR (Bestätigung durch Finanzprüfung).
Im Formblatt 471-KKW (Staatliche Plankommission) meldete der GAN zum 30.04.1988 8486 Beschäftigte ist (9028 soll), für den 31.08.1988 waren die Angaben 9497 Beschäftigte ist (10104 soll).

1992 begann die AIG GmbH (aus KKW Stendal GmbH entstanden) in den Baufeldern 1 bis 3 (nördlich, östlich und südlich des aktiven Bereiches des KKW, einschließlich der Baubaracken) alle oberirdischen Gebäude und Anlagen abzureißen. Im nördlichen Teil des Baufeldes 1 sollte ein Kohlekraftwerk (Doppelblockanlage) mit 2 x 750 MW brutto (2 x 2100 t/h Dampferzeugerleistung; 2 x 1830 MW Feuerungswärmeleistung; Nettowirkungsgrad 44 %; Rauchgasentschwefelung, Entstickung durch SCR-Verfahren; Hafenanlage für Kohleumschlag) errichtet werden. Dafür sollten zwei Kühltürme des KKW Stendal genutzt werden. Das Projekt scheiterte. Der Kühlturm B1 wurde 1994 und A1 und A2 1999 gesprengt.

In den Zentralen Baustelleneinrichtungen konnten eine Reihe von Firmen angesiedelt werden. Auf dem unbebauten Gelände des KKW wurde ein Teil der Zellstoff Stendal GmbH, Europas modernstes Zellstoffwerk, ab 2002 errichtet.

Von Januar bis August 2013 ruhen alle Abrissarbeiten an den Reaktorgebäuden und ihren Nebenanlagen. Reaktorgebäuden B ist bis Ebene 0.00 m schon abgetragen, Reaktorgebäuden A ist die 2.3 m dicke Stahlbetondecke auf 13.20 m freigelegt (Stand 01/2013). Die Spezielle Wasseraufbereitung (SWA) ist bis auf einen Rest abgetragen.
Anfang 2012 erfolgte der Abriss des Betriebsgebäudes der Inaktiven Werkstatt. Hier will die Arneburger Maschinen- und Stahlbau GmbH ein neues Gebäude errichten. Im Oktober 2012 wurde das brasilianische Eisenerz aus dem Reaktorgebäude A (Ebene 13.20 m) geborgen.


Zu keinem Zeitpunkt war der Name AKW Stendal, AKW Arneburg, AKW Niedergörne, KKW Arneburg oder KKW Niedergörne. Alle diese Bezeichnungen, vor allem im Internet, sind Falschaussagen.
Die Bezeichnung VEB Kernkraftwerk "Bruno Leuschner" ist nur für die Zeit der Zugehörigkeit zur VVB Kraftwerke Cottbus gültig (Auflösung: 01.10.1980).
 
Historiker und vor allem Journalisten haben bis heute abenteuerliches zum KKW "entdeckt", was mit der Wirklichkeit kaum etwas gemeinsam hat. Baukosten von 1.4 Mrd. DDR-Mark (Herr Hänel) über 28 Mrd. DDR-Mark (mdr) bis tagesschau.de (aberwitzige Zahlen zu DDR-KKWs, ohne Grundlage) oder die unpräzisen Angaben zu Baubeginn oder der Fertigstellungen sind nur zwei der vielen journalistischen Fehler. In fehlerhaft.htm sind viele diese Irrtümer zusammengetragen, die einen Beitrag zur Geschichtsfälschung leisten.


 

Einige technische Parameter KKW Stendal, 1000 MW Druckwasserreaktor

  • Die 4 Blöcke sollten in einem Abstand von 180 m in Ost-West Richtung gebaut werden

  •  
  • Höhe 0.00 m in den Bauunterlagen des aktiven Bereiches (Reaktorgebäude, Maschinenhaus, aktive Werkstatt, spezielle Wasseraufbereitung, inaktive Werkstatt mit Betriebsgebäude) wurde als 37.3 m über HN festgelegt.

  •  
  • Das Reaktorgebäude (66x66 m Innenmaß) hat eine über 2 m dicke Stahlbetongrundplatte (67.8x67.8 m) in 7 m Tiefe; auf Höhe 13.20 m ist die 2.4 m dicke kreuzweise bewehrte Stahlbetonplatte (Fläche 4597 m², Volumen 11032 m³), die das Containment trägt. Dessen Innendurchmesser ist 45 m und seine Wandstärke 1.2 m. Der Zylinder sollte von 13.20 bis 48.45 m gehen und von einer Kuppel abgeschlossen werden. Das Reaktorgebäude sollte 72 m hoch werden. Das Containment war eine Eigenentwicklung der Bauakademie der DDR und wurde durch das MLK Leipzig (Metall-Leichtbau-Kombinat) realisiert. Der Außendurchmesser der Abschirmung Reaktorschacht war 12.2 m und er Innendurchmesser 5.75 m (andere Angabe 5.81 m). In ihm waren die Messkammern eingebaut. Der Rundlaufkran (Hersteller SKET) sollte auf 55.14 m arbeiten. Das hermetische Volumen betrug 67200 m³ (Betriebsdruck 0.05 bis 0.49 MPa; max. Containment-Leckrate 67.2 m³/Tag).

  •  
  • Der Turbinentisch war 73.7 m lang und maximal 18.0 m breit.

  •  
  • 4 Hauptumwälzpumpen (HUP) mit 4 Wärmetauschern (jeder 750 MJ/s) arbeiten im 1. Kreislauf.
    Die Antriebsturbinen für Kesselspeisewasser (8.5 MPa) sollten aus 2 Halblastpumpensätzen zu je 10.5 MW bestehen. Der Pumpensatz bestehen aus der Boosterpumpe (ca. 20 % der Gesamtleistung, ca. 2000 U/min) und der Hauptpumpe (ca. 5500 U/min) und hat einen Dampfdurchsatz von 5400 t/h bei 0.46 MPa und 250 °C. Hersteller: VEB Görlitzer Maschinenbau (im Kombinat Kraftwerksanlagenbau)

  •  
  • Je Turbine wurden 4 Hauptkühlwasserrohre (Stahlrohr ND 2600) verlegt und anschließend maschinell mit Beton auf ND 2400 ausgekleidet; 2 Hauptkühlwasserrohre je Kühlturm; die 4 Rückleitungen hatten denselben Aufbau.

  •  
  • Die Turbine sollte vom Typ K-1000-60/3000 (Sattdampf) und der Generator vom Typ TWW-1000-2US sein. Mit zwei 750 MVA Block-Trafos je Reaktor wurde über unterirdische Leitungen die gleichzeitige Einspeisung in das 220 kV und 380 kV Landesnetz geplant. Im Umspannwerk Schwarzholz sollten über 2 Reserve-Trafos auch Einspeisungen in das 110 kV Netz erfolgen. Im Endausbau sollten je drei 250 MVA Block-Trafos in den Ebenen 380/110 kV und 220/110 kV arbeiten und damit eine Steigerung der Versorgungssicherheit ermöglichen.

  •  
  • Je Reaktor waren 2 Naturzugkühltürme vorgesehen (150 m Höhe, Asbestbetoneinbauten, Durchmesser unten war 123 m und oben 74 m; der oberirdische Teil wog ca. 14168 t (Schrägstützen: 946 t; Schale bis 150 m Höhe: 23055 t; Kopfring: 167 t)

  •  
  • Um Kühlwasserverluste, auch unabhängig vom Elbepegel, ausgleichen zu können wurde von der Havel Wasser bezogen (Rohwasserversorgung Warnau). 2 Rohre (mit ND 600) führten von der Pumpstation bei Warnau ca. 18.5 km bis nach Niedergörne. Die Elbunterführung wird heute vom Zellstoffwerk genutzt. Die Pumpstation Warnau ist heute noch vorhanden.

 
Es gibt eine Menge an Gerüchten zur Stabilität der Containment-Kuppel bei einem Flugzeugabsturz.
Nach der Befragung von Zeitzeugen zeichnet sich folgendes ab:
Ein GVS-Dokument behandelt den Sachverhalt des Flugzeugabsturzes und wurde mehrmals in Beratungen verwendet. Am Ende des VEB KKW Stendal wurden alle noch als geheim deklarierten Dokumente des KKW eingezogen und vernichtet. Ein Exemplar dieses GVS-Dokumentes dürfte noch im Bestand des SAAS sein.
Bis jetzt wurden in den Archiven keine Dokumente mit aktiver Geheimnisdeklaration gefunden.

 

Quellen:

  • Archive des KKW Stendal
  • Buch "Das Wissen der Region", Band 1, (ISBN 3-00-017751-5)
  • Befragungen von Zeitzeugen

  •  

    Übersicht der befragten Zeitzeugen:

    Arbeitsort im KKW Stendal
    Name Gebäude Zimmer Tel.-Nr.
    W. Ba. FG-B 313 3372
    W. Br. FG-B 427 3308
    N. Bü. FG-ZIW 257 3369
    H. Ga. FG-B 421 3310
    K. He. MZG III 623 4077
    P. Ju. MZG III 443 3271
    H. Ka. MZG III 228 3419
    H. Ki. FG-B 315 3311
    H. Kr. FG-B 329 3304
    N. Ma. FG-ZIW 413 3435
    F. Me. MZG III 435 3307
    K. Or. MZG III 640 3340
    E. Sc. MZG III 439 3371
    B. Sc. FM 3316
    B. Se. FM-G 228 3345
    B. We. FG-B 320 3374

     
     
     

     

    Übersicht der veröffentlichten Dokumente auf www.YCDT.de

    - Hauptseite
    - Niedergörne lag 1974 noch im Landkreis Osterburg     Entschädigung der Bürger
    - Aufbaustab KKW III
    - Schutzgebietserklärungen 1974 und 1989
    - KKW Stendal Baukostenübersicht für 4 x 440 MW DWR vom 31.10.1980
    - Chronik der Baustelle 1974 - 1977
    - Bodennutzungsverträge 1975 und 1980
    - Arbeiterberufsverkehr und soziale Einrichtungen 1979
    - Inhaltsverzeichnis der O-Mappe für Gutachten und Stellungnahmen   Teil 1   Teil 2   Teil 3
    - Grundlagen Bau- und Montagetechnologie 1000 MW DWR 1980
    - Dokumentation SU Projekt WWER 1000 von 1981 für KKW Stendal
    - Entwicklung der GE, 1.Baustufe  KKW Stendal von 1984
    - WWER 1000 -Druckwasserreaktor  sowj. Doku 1984
    - Baufachliches Gutachten - Definitivdränage von 1985
    - Entwicklung HAN-Baukosten   Tabelle von 1985
    - Zentrales Umspannwerk Schwarzholz Plan 1985
    - Wasserbilanzentscheidung, Wasserrechtliche Nutzungsgenehmigung
    - Reaktorsysteme  Teil 1  Teil 2  Teil 3
    - Technische Dokumentation Hermetische Kontur
    - VE Kombinat Kernkraftwerke - Kennziffernkatalog 1984
    - Reaktorschacht technische Dokumentation
    - Dokumente zur Bau- und Montagetechnologie
    - Kulturelle Mehrzweckeinrichtung für die Stadt Stendal, 1984
    - Übersicht der Baukosten   reine Baukosten, ohne Ausrüstungskosten 1986
    - Sowj. Automatisierungstechnik für WWER 1000, Katalog Kontroll- und Meßgeräte 1986
    - Präzisierter Gesamtablaufplan 1986
    - Dokumente zur Bautechnologie im KKW Stendal
    - 1000 MW Trainer in der Stadt Stendal
    - Schnitt durch das Reaktorgebäude techn. Dokumentation
    - Grundsatzentscheidung 1. BS   Schwarzholz, Fernwärme, Endlager, NSW-Import
    - Herbeiführung der Grundsatzentscheidung KKW Stendal, 1. Baustufe, 2 x 1000 MW  (12/89)
    - Inventur der Bankkonten per 30.04.1990   Magdeburger Baugesellschaft, KKW-Bau Stendal 1990
    - Schlussbilanz 30.06.1990 erstellt durch Treuarbeit AG Hannover
    - Der Weg zum Baustopp 17.09.1990
    - Ingenieurbau Altmark Bauleistungen 1990 für KKW Stendal GmbH
    - Ablaufplan für Reaktor 1 und Reaktor 2 1990
    - Aufbau 1000 MW DWR-Reaktor, Typ WWER 1000 für KKW Stendal   1990
    - Aufbau 1300 MWe SIEMENS/KWU Reaktor für Kernkraftwerk Stendal GmbH 1990
    - DDR-Bauakademie: Stahlzellenverbundbauweise für KKW mit 1300 MW DWR 1990
    - Abwicklung Lieferkette KKW Stendal 1991
    - Lageplan Übersicht Rückbau KKW Stendal 1992
    - Baustellenbilder:  1974, 1977 und 1978, 1979, 1980, 1985, 1986, 1987, 1988, 1988, 1989, 1990, 1990, 199x, 200x
    - Nummer-Übersicht der KKW Stendal-Objekte des BMK ab 1984/85
    - Bild geplanter DDR-Endausbau 4000 MW 
    - Bilder SIEMENS/KWU-Studie für 4600 MW   KKW Stendal GmbH 1990
    - Gelände KKW Stendal: was noch da ist  (2011)
    - vom KKW Stendal ins Museum 
    - Demontage Reaktorgebäude 1 und 2
    - Demontage Gebäude Spezielle Wasseraufbereitung (SWA)

     
    Weltweit dürfte es zu keinem Kernkraftwerk mehr Fotos aus der Bauphase geben!
    Bisher veröffentlichte Baustellenbilder:
    1977 und 197819851986198719881988198919901990, Teil 21991-Rückbau (neu seit 2018)
     
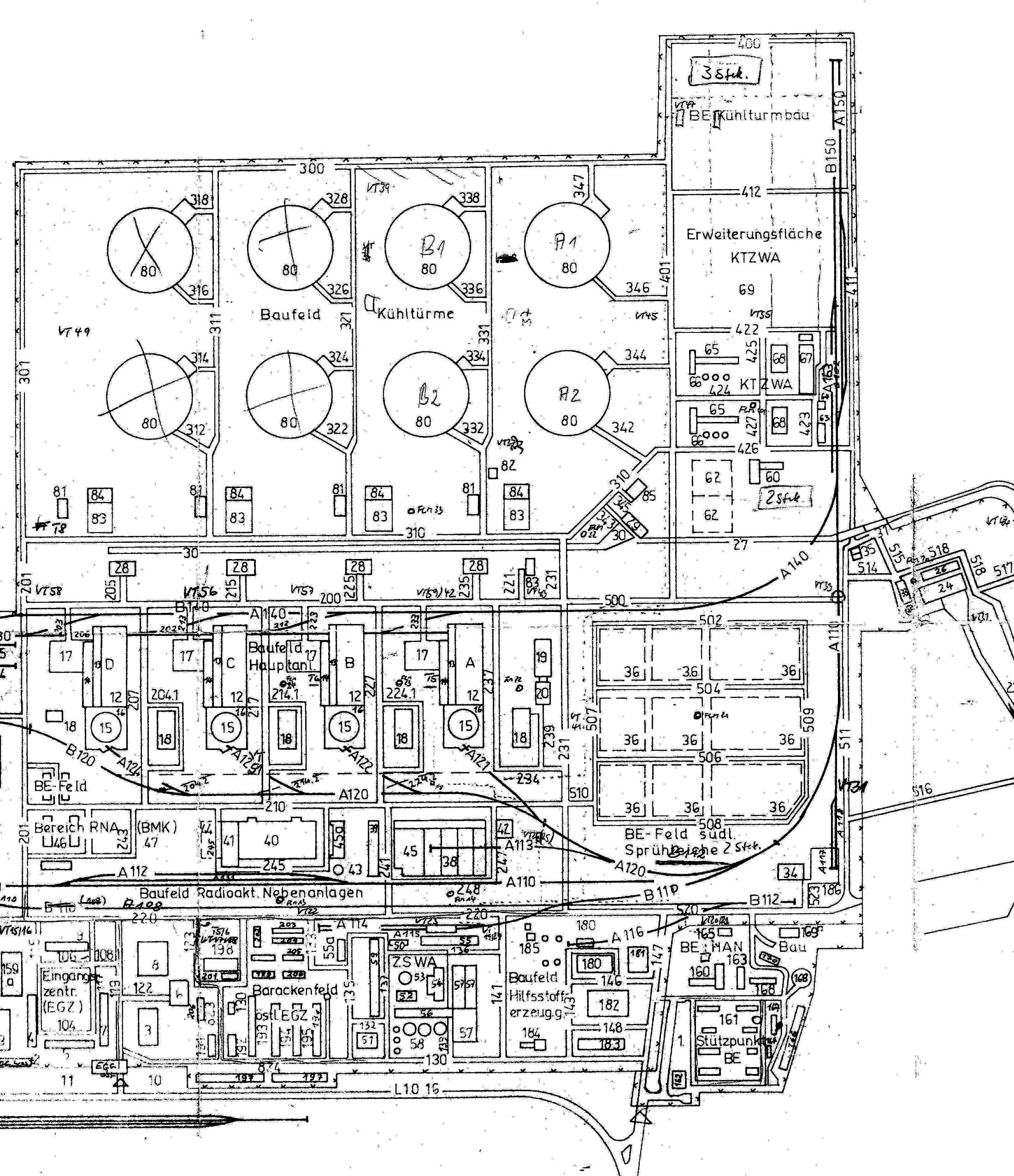
    Zur Orientierung auf der Baustelle:
    Lageplan westlicher Teil    Lageplan mittlerer Teil (ohne Kühltürmfeld)
    Lageplan östlicher Teil (mit Kühlturmfeld)    Lageplan östlicher Teil bis Elbe

     
    Details Orientierung 4x 1000 MW WWER 1000:
    Lageplan westlicher Teil   Lageplan östlicher Teil mit Kühlturmfeld    Legende1 Lageplan   Legende2 Lageplan

     

    Offizielle Baustellenfotos:  1979     1980  



    NEU   =======>>   Windenergie: Hochauflösende Histogramme und Trends, prof. Wetterstation, Arneburg/Elbe

    Hochauflösende 9 Tage-Histogramme und zugehörige Diagramme (Trends) 2022, Arneburg/Elbe

    Hochauflösende 9 Tage-Histogramme und zugehörige Diagramme (Trends) 2023, Arneburg/Elbe

    Hochauflösende Tages-Histogramme und zugehörige Diagramme (Trends), Arneburg/Elbe

    Verschiedene Tages-Histogramme: Arneburg Verschiedene Tages-Histogramm, 
  Sensor auf Gebäude, ca. 50 m über Erdboden, Basis: 5s-Aufzeichnung
    Windparks um Stendal Bilder Reparatur Windräder im Windpark Arneburg/Elbe
    Bilder Demontage Windräder in Sachsen-Anhalt Dokumentation einzelner Tage Windgeschwindigkeitsmessung, Arneburg/Elbe

    Hochauflösende Monats-Histogramme und zugehörige Diagramme (Trends) der Windgeschwindigkeitsmessung, Arneburg/Elbe



    www.audatec.net       www.K1520.com       www.YCDT.net       www.YCDTOT.com