Logo KKW Stendal
 

KKW Stendal - SU Projekt 1981: WWER 1000


Zum ersten Mal im Internet: sowjetische Dokumente WWER 1000 für Stendal von 1981 veröffentlicht. Nachfolgend Auszüge aus der Dokumentation.

Zur besseren Lesbarkeit der Dokumente wurde hinter jedem Bild der Link auf ein größeres Original hinterlegt


Nuclear Power Plant Stendal, WWER1000-Reaktorgebäude
Reaktorhaus
 
 
DDR KKW Stendal, WWER1000-Reaktorgebäude
Einbau von Blockzellen
 
 
AKW/KKW Stendal, WWER1000-Reaktorgebäude
Containment aus Stahlzellen
 
 
KKW Stendal, WWER1000-Reaktorgebäude
Reaktorhaus 49.80 m
 
 
Nuclear Power Plant Stendal, WWER1000-Reaktorgebäude
Reaktorhaus mit Umbau, 41.40 - 45.60 m
 
 
DDR KKW Stendal, WWER1000-Reaktorgebäude
Reaktorhaus mit Umbau, 33.60 - 36.60 m
 
 
AKW/KKW Stendal, WWER1000-Reaktorgebäude
Reaktorhaus mit Umbau, 28.80 - 29.40 m
 
 
KKW Stendal, WWER1000-Reaktorgebäude
Reaktorhaus mit Umbau, 24.50 - 25.70 m
 
 
Nuclear Power Plant Stendal, WWER1000-Reaktorgebäude
Reaktorhaus mit Umbau, 19.20, 19.34, 20.40 m
 
 
DDR KKW Stendal, WWER1000-Reaktorgebäude
Reaktorhaus mit Umbau, 16.50 - 16.80 m
 
 
AKW/KKW Stendal, WWER1000-Reaktorgebäude
Reaktorhaus mit Umbau, 13,20 - 15.70 m
 
 
KKW Stendal, WWER1000-Reaktorgebäude
Reaktorhaus mit Umbau, 5.60 m
 
 
Nuclear Power Plant Stendal, WWER1000-Reaktorgebäude
Reaktorhaus mit Umbau 3.60 m
 
 
DDR KKW Stendal, WWER1000-Reaktorgebäude
Reaktorhaus mit Umbau 0.00 m
 
 
AKW/KKW Stendal, WWER1000-Reaktorgebäude
Reaktorhaus mit Umbau -4.20 m
 
 
KKW Stendal, WWER1000-Reaktorgebäude
Reaktor- und Maschinenhaus, 15.00 - 25.70 m
 
 
Nuclear Power Plant Stendal, WWER1000-Reaktorgebäude
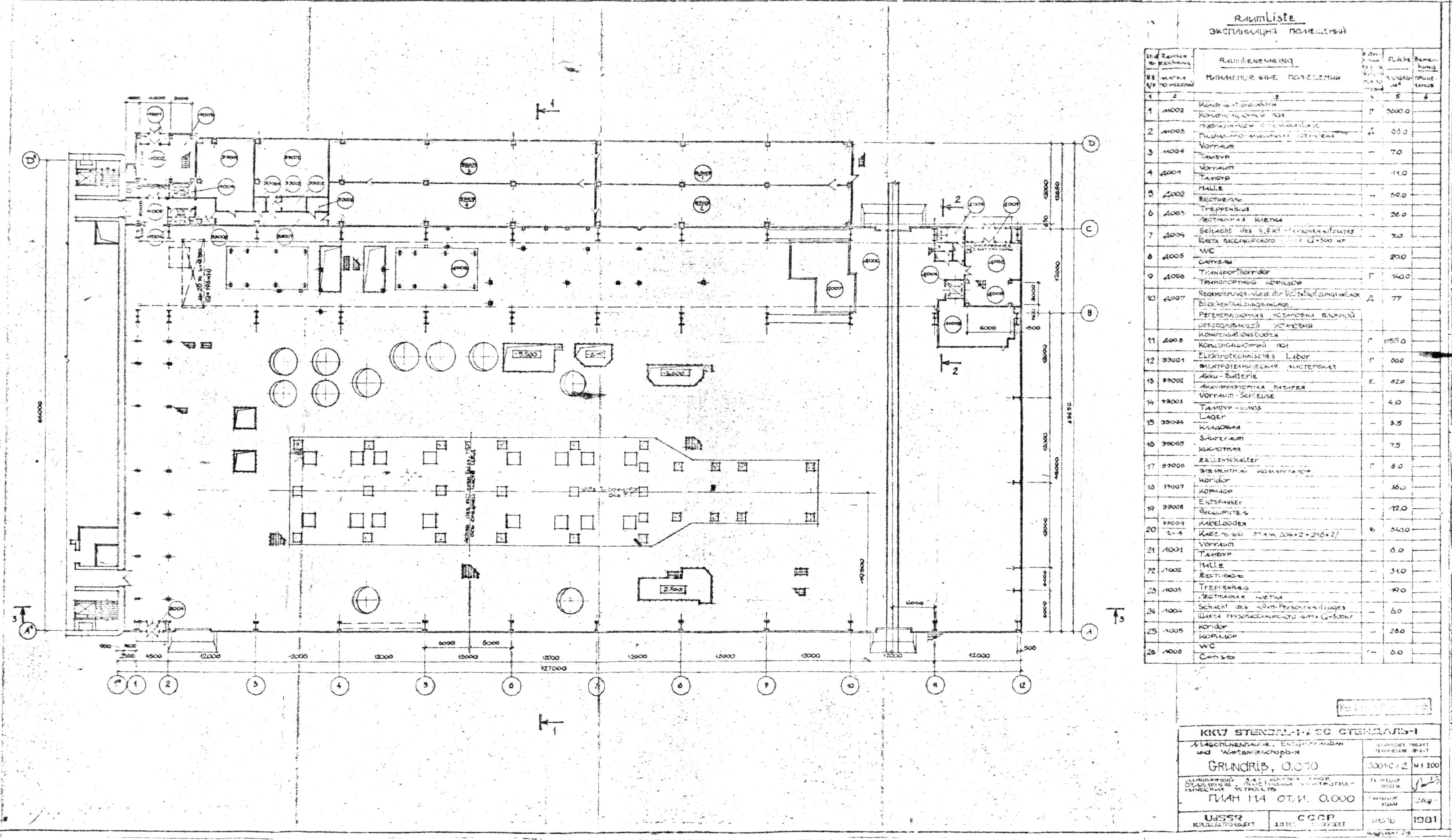
Reaktorhaus mit Umbau Grundriss 0.00 m
 
 
DDR KKW Stendal, WWER1000-Reaktorgebäude
Schnitt Reaktorhaus mit Umbau
 
 
AKW/KKW Stendal, WWER1000-Reaktorgebäude
Containment, Stahlzellen
 
 
KKW Stendal, WWER1000-Reaktorgebäude
Reaktorhaus mit Umbau, Schalungsplan
 
 
Nuclear Power Plant Stendal, WWER1000-Reaktorgebäude
21
 
 
DDR KKW Stendal, WWER1000-Reaktorgebäude
22
 
 
AKW/KKW Stendal, WWER1000-Reaktorgebäude
23
 
 
KKW Stendal, WWER1000-Reaktorgebäude
24
 
 
Nuclear Power Plant Stendal, WWER1000-Reaktorgebäude
25
 
 
DDR KKW Stendal, WWER1000-Reaktorgebäude
26
 
 
AKW/KKW Stendal, WWER1000-Reaktorgebäude
27
 
 
KKW Stendal, WWER1000-Reaktorgebäude
28
 
 
Nuclear Power Plant Stendal, WWER1000-Reaktorgebäude
29
 
 
DDR KKW Stendal, WWER1000-Reaktorgebäude
30
 
 
AKW/KKW Stendal, WWER1000-Reaktorgebäude
31
 
 
KKW Stendal, WWER1000-Reaktorgebäude
32
 
 
Nuclear Power Plant Stendal, WWER1000-Reaktorgebäude
33
 
 
DDR KKW Stendal, WWER1000-Reaktorgebäude
34
 
 
AKW/KKW Stendal, WWER1000-Reaktorgebäude
35
 
 
KKW Stendal, WWER1000-Reaktorgebäude
36
 
 
Nuclear Power Plant Stendal, WWER1000-Reaktorgebäude
37
 
 
DDR KKW Stendal, WWER1000-Reaktorgebäude
38
 
 
AKW/KKW Stendal, WWER1000-Reaktorgebäude
39
 
 
KKW Stendal, WWER1000-Reaktorgebäude
40
 
 
Nuclear Power Plant Stendal, WWER1000-Reaktorgebäude
41
 
 
DDR KKW Stendal, WWER1000-Reaktorgebäude
42
 
 
AKW/KKW Stendal, WWER1000-Reaktorgebäude
43
 
 
KKW Stendal, WWER1000-Reaktorgebäude
44
 
 
Nuclear Power Plant Stendal, WWER1000-Reaktorgebäude
45
 
 
DDR KKW Stendal, WWER1000-Reaktorgebäude
46
 
 
AKW/KKW Stendal, WWER1000-Reaktorgebäude
47
 
 
KKW Stendal, WWER1000-Reaktorgebäude
48
 
 

 

 

 

 

 

 

Die wechselvolle Geschichte des KKW III / KKW Stendal wird leider in wikipedia völlig falsch dargestellt. Die hier veröffentlicheten vielen Dokumente zum KKW Stendal werden mit höchst zweifelhafter Begründung vollkommen abgelehnt. Die Wahrheit hat es sehr schwer Bestandteil von wikipedia zu sein - und dann entsteht leicht lügenpedia!


 

 
 
 

 

Übersicht der bisher zum Kernkraftwerk Stendal veröffentlichten Dokumente  auf  www.YCDT.de

- Hauptseite
- Niedergörne lag 1974 noch im Landkreis Osterburg     Entschädigung der Bürger
- Schutzgebietserklärungen 1974 und 1989
- KKW Stendal Baukostenübersicht für 4 x 440 MW DWR vom 31.10.1980
- Chronik der Baustelle 1974 - 1977
- Bodennutzungsverträge 1975 und 1980
- Arbeiterberufsverkehr und soziale Einrichtungen 1979
- Inhaltsverzeichnis der O-Mappe für Gutachten und Stellungnahmen   Teil 1   Teil 2   Teil 3
- Grundlagen Bau- und Montagetechnologie 1000 MW DWR 1980
- Dokumentation SU Projekt WWER 1000 von 1981 für KKW Stendal
- Entwicklung der GE, 1.Baustufe  KKW Stendal von 1984
- WWER 1000 -Druckwasserreaktor  sowj. Doku 1984
- Baufachliches Gutachten - Definitivdränage von 1985
- Entwicklung HAN-Baukosten   Tabelle von 1985
- Umspannwerk Schwarzholz Plan 1985
- Wasserbilanzentscheidung, Wasserrechtliche Nutzungsgenehmigung
- Reaktorsysteme  Teil 1  Teil 2  Teil 3
- Technische Dokumentation Hermetische Kontur
- VE Kombinat Kernkraftwerke - Kennziffernkatalog 1984
- Reaktorschacht technische Dokumentation
- Dokumente zur Bau- und Montagetechnologie
- Kulturelle Mehrzweckeinrichtung für die Stadt Stendal, 1984
- Übersicht der Baukosten   reine Baukosten, ohne Ausrüstungskosten 1986
- Sowj. Automatisierungstechnik für WWER 1000, Katalog Kontroll- und Meßgeräte 1986
- Präzisierter Gesamtablaufplan 1986
- Dokumente zur Bautechnologie im KKW Stendal
- 1000 MW Trainer in der Stadt Stendal
- Baustellenbilder:  1977 und 19781987, 1988, 19881990, 1990 und 199x
- Schnitt durch das Reaktorgebäude techn. Dokumentation
- Grundsatzentscheidung 1. BS   Schwarzholz, Fernwärme, Endlager, NSW-Import
- Herbeiführung der Grundsatzentscheidung KKW Stendal, 1. Baustufe, 2 x 1000 MW  (12/89)
- Inventur der Bankkonten per 30.04.1990   Magdeburger Baugesellschaft, KKW-Bau Stendal 1990
- Ingenieurbau Altmark Bauleistungen 1990 für KKW Stendal GmbH
- Ablaufplan für Reaktor 1 und Reaktor 2 1990
- Aufbau 1000 MW DWR-Reaktor, Typ WWER 1000 für KKW Stendal   1990
- Aufbau 1300 MWe SIEMENS/KWU Reaktor für Kernkraftwerk Stendal GmbH 1990
- DDR-Bauakademie: Stahlzellenverbundbauweise für KKW mit 1300 MW DWR 1990
- Abwicklung Lieferkette KKW Stendal 1991
- Lageplan Übersicht Rückbau KKW Stendal 1992
 
- Nummer-Übersicht der KKW Stendal-Objekte des BMK ab 1984/85
- Bild geplanter DDR-Endausbau 4000 MW 
- Bilder SIEMENS/KWU-Studie für 4600 MW   KKW Stendal GmbH 1990
- Gelände KKW Stendal: was noch da ist  (2011)
- vom KKW Stendal ins Museum 
- Demontage Reaktorgebäude 1 und 2
- Demontage Gebäude Spezielle Wasseraufbereitung (SWA)

 
Weltweit dürfte es zu keinem Kernkraftwerk mehr Fotos aus der Bauphase geben!
Bisher veröffentlichte Baustellenbilder:
1977 und 197819851986198719881988198919901990
 
Zur Orientierung auf der Baustelle:
Lageplan westlicher Teil    Lageplan mittlerer Teil (ohne Kühltürmfeld)
Lageplan östlicher Teil (mit Kühltürmfeld)    Lageplan östlicher Teil bis Elbe

 

Offizielle Baustellenfotos:   1979     1980  


 


www.audatec.net      www.K1520.com      www.YCDT.net      www.YCDT.de      www.YCDTOT.com     
 
 
impressum